Stok Kodu : HTM07

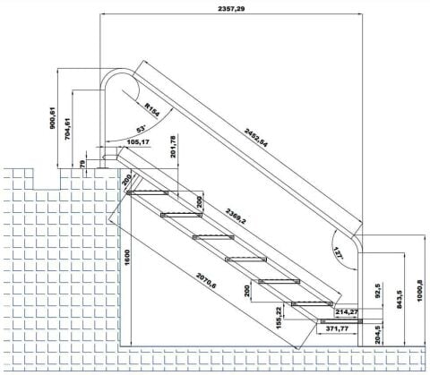
Eğimli Hidroterapi Havuz Merdiveni 7 Basamak 304 Kalite

95.071,14 TL
66.549,80 TL
Fiyat
1.500,00 EUR + KDV
*7.172,84 TL den başlayan taksitlerle!

Eğimli Hidroterapi Havuz Merdiveni (7 Basamaklı)

Kategori: Profesyonel Havuz İçi Ekipmanlar | Malzeme: AISI 304 Paslanmaz Çelik Ultra Derin Havuz Çözümü

7 basamaklı Eğimli Hidroterapi Havuz Merdiveni, havuz donanımında ulaşabileceğiniz en yüksek konfor ve güvenlik seviyesini temsil eder. Özellikle derinliği yüksek havuzlarda veya uzun süreli su içi rehabilitasyon süreçlerinde, kullanıcının havuza girişini tamamen zahmetsiz hale getirmek için tasarlanmıştır.

Geniş açılı eğimi, kullanıcıya suya adım attığı ilk saniyeden itibaren tam destek sağlar. 7 adet geniş basamağı sayesinde, su seviyesi ne kadar yüksek olursa olsun, her adım güvenle atılır. Bu model, estetik görünümü paslanmaz çeliğin dayanıklılığıyla birleştirerek havuzunuza profesyonel bir terapi merkezi standartı kazandırır.

Teknik Özellikler

  • Gövde: AISI 304 Kalite Paslanmaz Çelik (Yüksek Polisajlı).
  • Boru Çapı: Ø43 mm standart dayanıklı boru.
  • Basamak Sayısı: 7 adet (Kaymaz yüzey korumalı).
  • Tasarım: Maksimum derinlik odaklı hidroterapi açısı.
  • Kurulum: Ankraj ve rozet bağlantı seti dahil.

Neden 7 Basamak?

  • Kesintisiz Erişim: Çok derin havuzlarda bile basamak aralıkları optimaldir.
  • Tam Destek: Rehabilitasyon hastaları için en güvenli iniş noktası.
  • Denge Odaklı: Ayak tabanını tam destekleyen 7 adet geniş basamak.
  • Profesyonel Standart: Tesis tipi havuzlar için en yüksek güvenlik kriterleri.

Kullanım ve Kritik Bilgiler

İdeal Kullanım Fizik tedavi merkezleri, büyük tesis havuzları ve özel derin villa havuzları.
Montaj Gereksinimi 7 basamaklı yapı gereği havuz içinde geniş bir zemin alanı kaplar; planlama yaparken dikkate alınız.
Tuzlu Su Bilgisi Tuz jeneratörlü (elektroliz) sistemlerde korozyon direnci için 316 kalite üretimi tercih ediniz.

Çetinkaya Havuzculuk Teknik Notu

7 basamaklı merdiven, havuza erişimde sınırları zorlayan, en konforlu ve en güvenli seçeneğimizdir. Basamak sayısı arttıkça suyun içine doğru uzanan eğim daha yumuşak hale gelir, bu da eklemler üzerinde yük bırakmadan suya girmenizi sağlar. Ürün, paslanmaz çelik temizleyicilerle düzenli silindiğinde, ticari tesislerde bile yıllarca ilk günkü parlaklığını muhafaza eder.

⚠️ Önemli Sipariş Bilgilendirmesi

Özel Üretim Süreci: Bu ürün, havuzunuzun özel derinlik ölçülerine ve teknik gereksinimlerine istinaden siparişiniz üzerine özel olarak imal edilmektedir. Üretim ve hazırlık süreci yaklaşık 10 iş günü sürmektedir.

İade Politikası: Tamamen kişiye/projeye özel imalat yapıldığından, bu modelde cayma hakkı kapsamında iade veya değişim kabul edilmemektedir. Sipariş vermeden önce lütfen havuz derinliğinizi ve merdiven ölçülerinizi teknik ekibimizle teyit ediniz.

Ürün Tanıtım Videosu

Bu ürüne ilk yorumu siz yapın!
Bu ürünün fiyat bilgisi, resim, ürün açıklamalarında ve diğer konularda yetersiz gördüğünüz noktaları öneri formunu kullanarak tarafımıza iletebilirsiniz.
Görüş ve önerileriniz için teşekkür ederiz.
Eğimli Hidroterapi Havuz Merdiveni 7 Basamak 304 Kalite Havuz malzemesi, periyodik bakım ve A’dan Z’ye ekipmanlar. Gemaş, AstralPool ve lider markalar en uygun fiyatlarla Çetinkaya Havuzculuk’ta! HTM07
Eğimli Hidroterapi Havuz Merdiveni 7 Basamak 304 Kalite

Tavsiye Et

*
*
*
ideasoft e-ticaret paketleri ile hazırlandı.