Stok Kodu : 0311623
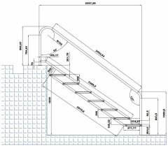
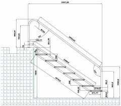
Gemaş Eğimli Hidroterapi Havuz Merdiveni 304 Kalite 970 mm - 6 Basamak
120.676,18 TL
84.473,33 TL
Kategori
Marka
Fiyat
2.056,00 EUR + KDV
Havale
82.783,86 TL
(%2,00 havale indirimi)
*9.104,66 TL den başlayan taksitlerle!
Genişlik 970 mm. Kollar Ø 42 mm AISI 316 paslanmaz çelik borudan, paslanmaz çelik çerçeveli - kaymaz paslanmaz çelik basamakları, plastik ankrajları ve rozetleri ile komple


Bu ürüne ilk yorumu siz yapın!